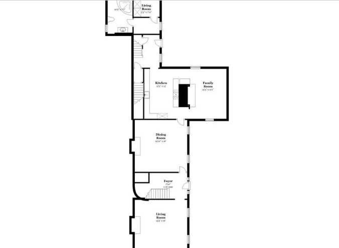
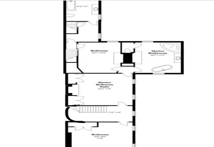
Luxurious College Hill/East Side of Providence townhouse. Although this classic Greek Revival Townhouse has been beautifully updated, many of the historic details remain, such as extensive crown molding, 7 stunning fireplaces with original mantels and stone and marble face, shutters, and 9 1/2′ ceilings. The foyer is an inviting space with a curved staircase to the second level and understated but elegant Art Deco chandelier. The living room is a sun-filled comfortable space with an elaborately detailed fireplace. The home’s dining room is an elegant space with built-in cabinets that flank the fireplace for additional storage. Open to the dining room is the stunning gourmet kitchen with sleek black granite counters, a Viking Professional gas range, refrigerator, and hood all in an eye-catching burgundy color. Large windows overlook a lovely courtyard. Off the kitchen are the spacious family room, a pantry, laundry room, and a large full bath with walk-in shower. Ascend to the second level to the home’s sumptuous Master Suite with soaking tub and walk-in glass encased shower. There are 2 additional spacious bedrooms with ample closet space and a full bath. The third level can function as a private guest suite or another Master Suite. Double vanity sinks, an enormous steam shower, and a tub make for an inviting space. Within walking distance to all the City has to offer, universities, train, restaurants, and shops.
Property Features
Heating and Cooling
- Fireplace Features: Brick
- Heating Features: Forced Air
- Number of Fireplaces: 7
Other Rooms
- Basement Description: Full
Garage and Parking
- Parking Total: 2
Homeowners Association
- Association Fee: 250
- Association Fee Frequency: Monthly
- Prorated Total Monthly Association Fees: 250
Other Property Info
- Annual Tax Amount: 10932.0000
- Source Listing Status: Active
- Tax Year: 2018
- Source Property Type: Condominium
- Property Subtype: condo
- Postal Code Plus 4: Post
- Source System Name: C2C
Building and Construction
- Square Feet Living: 3464
- Year Built: 1842
- Building Exterior Type: Clapboard
- New Construction: N
- Property Age: 177
- House Style: Town House
Utilities
- Water Source: Connected, Individual Meter
Legal and finance
- HOA Frequency: Monthly/250
- HOA fee: $250
-
Price: $ 849,900
- Area (m2) : 3464 m2
- Bedrooms : 4
- Bathrooms : 4
- Year Built : 1842
Location On Map
Neighbourhoods:
-
School
-
Park
-
Hospital
-
Restaurant
-
Bank
-
Zoo


0 Comments